Oeuvre suisse d'entraide ouvrière - Locaux pour la fondation
Projet: Réaménagement de bureaux
Maître de l'Ouvrage: Oeuvre suisse d'entraide ouvrière
Architecte et Direction des travaux: Féroé Architectes SA
2015 - 2016

REAMENAGEMENT DE BUREAUX
Mandaté par l’Oeuvre suisse d’entraide ouvrière (OSEO) pour réaménager leurs bureaux, nous avons cherché a créer des espaces polyvalents lumineux et chaleureux. Accueillant des personnes en situation professionnelle précaire ou en réorientation, une attention particulière a été apportée a l’ambiance du lieu. Une orientation facilitée par l’aménagement, la signalétique et la lumière permet au visiteur de se repérer et prendre ses marques facilement. L’esprit chaleureux rappelant l’habitat est apporté pour les visiteurs et les employés par des luminaires en suspension dans les salles de cours et des plafonds tendus en toile dans les bureaux.
Photos avant travaux - C. F.


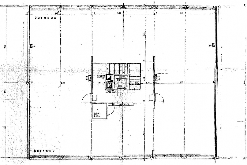
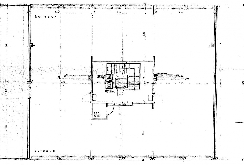
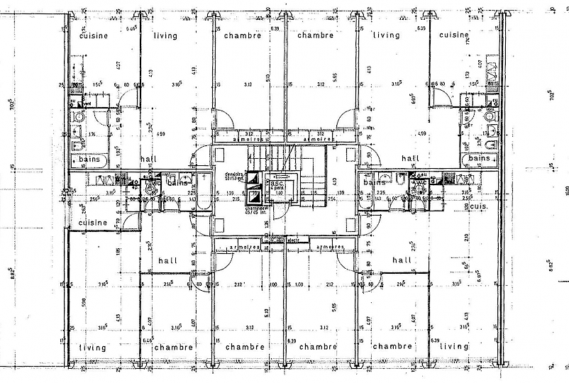
Plans avant travaux - J.-P. Grand & R. Praplan
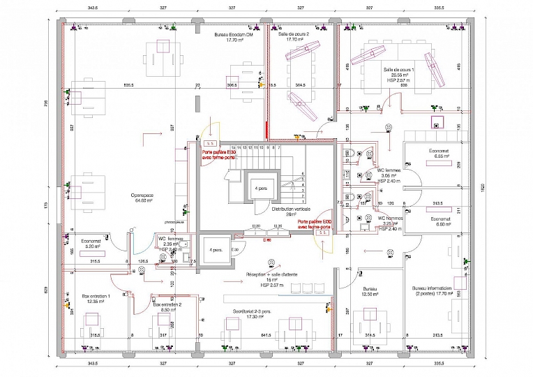
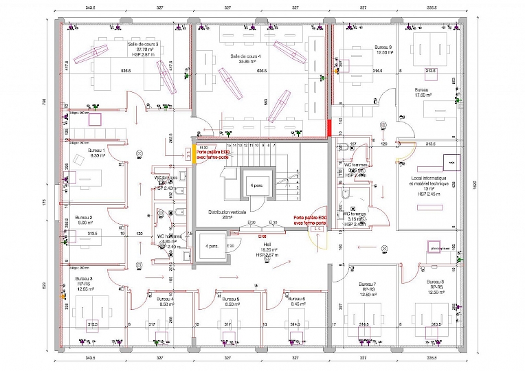
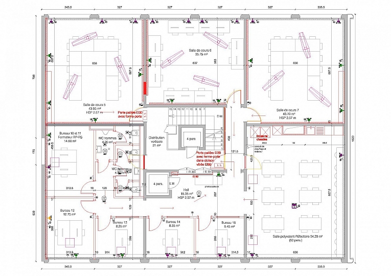
Plans des travaux - A.Lavy
TRAVAUX



Photos du chantier - C. F.
APRES TRAVAUX




Photos du chantier - C. F. et D. Mechkat















