Chapelle du Grand-Lancy
Projet: Réalisation du Centre culturel Henry Dunant - Genève humanitaire
Propriétaire: Eglise protestante de Genève
Maître de l'ouvrage: M. Roger Durand
Architecte et Direction des travaux: Féroé Architectes SA
Mandataires: MDB Ingénieurs Civils Associés SA, HKD Géomatique SA, J.-C. Wasser SA, Energestion SA, GADZ
Année de construction: 1913
Inscription à l’inventaire: MS-i LCY 16a et 16b du 22.04.2013
2012 - 2014

HISTOIRE
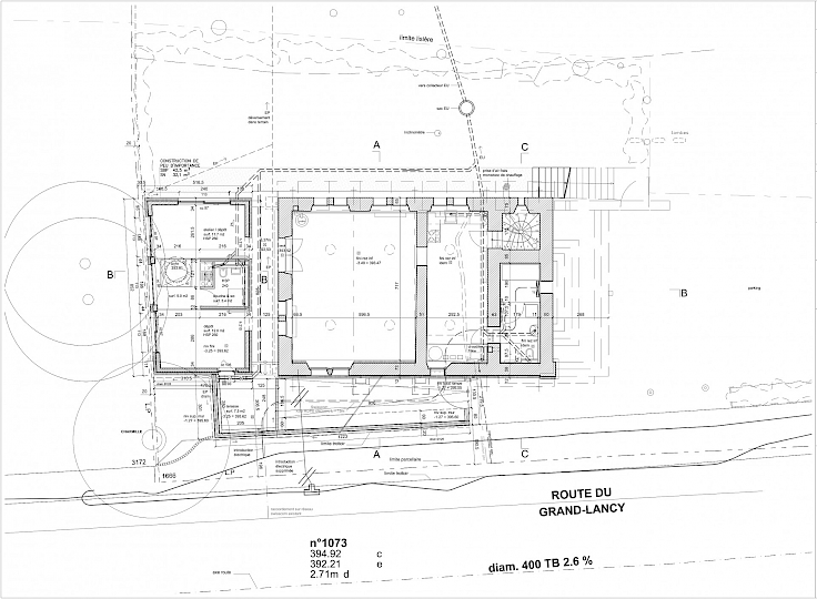
Œuvre des architectes Léon et Franz Fulpius, la Chapelle du Grand-Lancy fut édifiée à l'emplacement de la maison du pasteur Frank Dupurrut afin d'en perpétuer la mémoire. Elle est l'un des dix édifices religieux réalisés à Genève dans un style architectural connu sous le nom de ''Heimatstil'' et se distingue notamment par son imposant clocher. La Chapelle est de plan rectangulaire et de taille modeste. En raison de la forte pente du terrain, elle possède deux niveaux de plain- pied avec une salle de paroisse et un office au rez-inférieur, et une salle de culte au rez-supérieur. Elle fut restaurée en 1945 et pourvue à cette occasion d'un perron devant le porche. La chapelle a été inscrite à l'inventaire MS-i LCY-16a/b par ADU du 22 avril 2013.
Sources et extraits de : ''Arts et monuments - Ville et canton de Genève'' - Edition Benteli Berne 1985 et ''Les Chapelles en style suisse de Genève'' - Rapport de Mme. S. Lob-Philippe de 1999

Analyse des pathologies
Comme en témoignent les fissures, la Chapelle a été victime d'importants affaissements, et cela dans deux directions. Le plus important d'entre eux s'effectue en direction du cours d'eau de l'Aire s'écoulant en contrebas.
Une série de témoins ont été disposés. Le plus ancien encore en place remonte à 1987. Un inclinomètre a également été posé en 1994. Ce dernier a permis de relever une déflection du terrain au niveau des fondations de 32mm, sur une période de 16.6 ans.
Cette instabilité provient d'une part de la nature du terrain, et d'autre part, des variations hygrométriques dans le sous-sol. Ces variations résultent des sécheresses consécutives depuis l’été 2003, et aussi de la végétation dense environnante. De fait, les arbres avoisinant la façade nord ont été abattus.
En complément de cette mesure de stabilisation du terrain, une reprise en sous-œuvre de la Chapelle a été faite aux pieds des façades nord et sud, ainsi qu’une consolidation de l’enceinte avec la pose de tirants transversaux au niveau des rez-inférieur et supérieur, et sous la charpente.
Projet
1ère étape:
Abattage d'arbres visant à réduire l'instabilité du terrain et à ralentir le déversement de la chapelle.
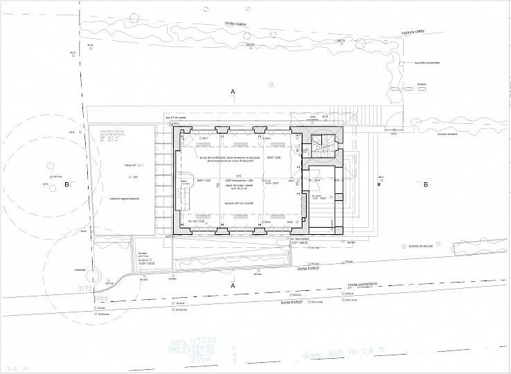
Consolidation des fondations et de l'enceinte de la chapelle:
Reprise en sous-œuvre des fondations par la réalisation de longrines et semelles en béton armé de chaque côté de l'édifice.
Pose de tirants en acier transversalement au rez-inférieur et au rez-supérieur.
Confection de dallages au rez-inférieur. Mise en place des drains et chemises de drainage périphériques.
Reconstruction de l'escalier du côté forêt avec remploi des marches en granit et stabilisation d’un mur de contention en moellons par des contreforts en béton armé.
2ème étape:
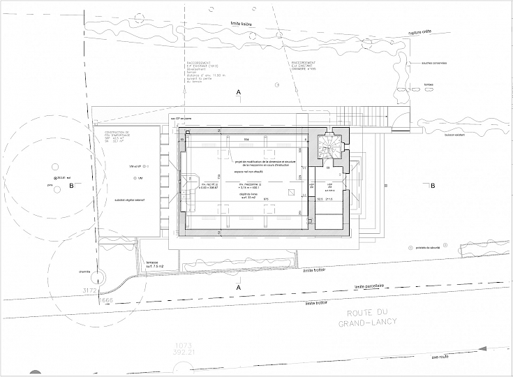
Aménagement d'une rampe d'accès côté route avec mur de contention et pose d’un garde-corps. Aménagement d’un espace de parking pour deux roues. Plantation de bambous et abricotiers.
Adaptation du rez-inférieur pour l'établissement d'un logement de fonction: Réfection de la cuisine et des locaux sanitaires.
Rénovation des installations de chauffage et de production d’eau chaude, remplacement de l'ancienne chaudière à gaz atmosphérique par une chaudière à condensation.
Réalisation d'un escalier dans le massif du clocher - Liaison entre le rez-inférieur et la nef et pose de portes EI30. Réalisation de deux fenêtres et d'un guichet dans le soubassement, côté route (selon projet initial de F. Fulpius).
Construction d’une annexe:
Espace d'accueil pour chercheurs composé de deux chambres, cuisinette et douche.
Travaux relatif à la conservation et intégration d''un ancien puits découvert durant les travaux dans l'espace intérieur de l'annexe.

Provenance des plans et photos de l'Atelier Féroé, 2014.




















































































