Temple de la Madeleine
Projet: Restauration clocher
Propriétaire: Eglise protestante de Genève (EPG)
Maître de l'ouvrage : Fondation pour la conservation des temples genevois construits avant 1907
Architecte et Direction des travaux: Féroé Architectes SA
Classement cantonal: MS – C 37 par ACE du 30.12.1921
Classement fédéral: PF 99. 1913
1999 - 2002
5e reconstruction
- fin XIVe
6e reconstruction
- selon la morphologie actuelle, milieu XVe, après l’incendie de 1430
Transformations
- 1611 – 1765 - 1846
Restaurations et fouilles archéologiques
- 1914 à 1924, arch. C. Martin
- 1969 à 1972, arch. R. Breitenbucher
HISTORIQUE
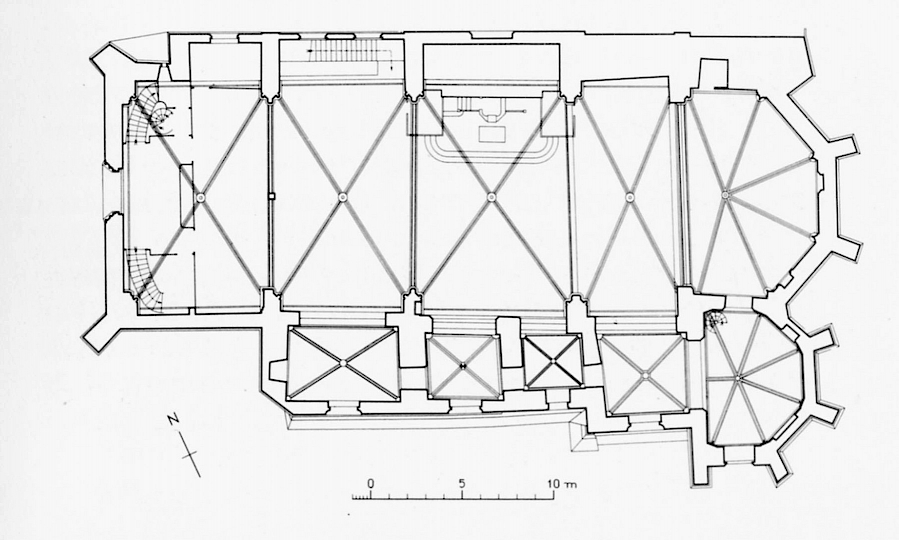
L’église de la Madeleine, caractéristique des constructions religieuses genevoises du XVe siècle, en style gothique tardif. Quatre édifices religieux, du Ve au XIe siècle, se succédèrent à l’emplacement primitif d’une nécropole en font office de ‘’memoria’’. Le sanctuaire actuel est construit dès la fin du XIVe siècle et s’achève par le chœur avant 1463. Cependant seul le clocher est antérieur à 1430, année oû un grand incendie ravagea l’ouvrage existant. Des galeries intérieures furent ajoutées par manque de place lords de la Réforme. L’église subit une première restauration, néo-gothique, en 1846 ; elle fut ‘’dérestaurée par C. Martin en 1914-24, pour remettre en valeur l’ancienne architecture ; nouvelle intervention, accompagnée de fouilles, en 1969-1972.
Vues anciennes.
Bibliographie. Papiers Barde AEG - Temples de Genève, 1950, pp. 16-19 - C. Bonnet, Les premiers édifices chrétiens de la Madeleine à Genève, 1977 - ISOS ‘’ élément indiv. à protéger’’ - Guide SHAS, pp 93-94 - Eglise de la Madeleine Genève, APAS, Genève 1992. Plan de situation. Document hors échelle - Service du Cadastre - Photo Boissonnas 1914 – Camille Martin, Genava 1924 - Photo Molly 1924 – Camille Martin, Genava 1924
Le temple de la Madeleine tel qu'il se présente, date des XIVe et XVe siècles. Il recouvre les fondations de quatre édifices religieux qui se sont succédés dès la fin du Ve siècle à la seconde moitié du XIe siècle. Le clocher – tour est édifié sur une souche romane, aux ¾ de la nef sur le flanc sud, côté rue Toutes-Ames. Selon l’expertise des éléments de charpente, établie par le Laboratoire Romand de Dendrochronologie* (LRD) dans le cadre de ces travaux, le premier et le deuxième niveaux contiennent des solives et une distribution en sapin et en épicéa, provenant d’arbres dont l’abattage a été daté, de façon absolue, à 1465. Par contre, les poutres en chêne de la chaise soutenant les trois cloches proviennent d’arbres dont l’abattage a été daté à 1764. La flèche du clocher a été remplacée par un toit en «capuchon» à huit pans après la réforme. Les cloches ont été électrifiées en 1968. * cf. Expertise, réf. LRD01/R5168 – Moudon, le 1 mars 2001
OBJECTIFS
Dans un premier temps, le projet a consisté à assainir les lieux suite au constat de pourriture cubique sur un des 4 appuis du beffroi. Cette pourriture a été causée par la formation de condensation sur une colonne E.P. en fonte en contact avec l’appui et, une accumulation de crépi désagrégé. Un programme a été élaboré pour restaurer le beffroi, refaire les crépis à la chaux en pâte, réparer les planchers en sapin, réviser les installations de cloches, refaire l’électricité et installer un éclairage.
PROJET DE CAILLEBOTIS
Dans un deuxième temps, partant du constat que l’intérieur du clocher était mal ventilé et que l'obscurité favorisait le développement de champignons, j’ai proposé au maître de l’ouvrage d’améliorer ces conditions avec un dispositif de caillebotis modulaires amovibles, en chêne massif, sur les six niveaux du clocher, à la place des planchers existants très abîmés.
Ce dispositif de caillebotis, accueilli de manière favorable par la CMNS - DAEL, offre entre autres, les avantages suivants :
1) Une ventilation ascendante et moins d’écarts de températures intérieures / extérieures, donc une régulation et une diminution du taux d’humidité.
2) Une accessibilité permanente à toutes les parties, soit un meilleur contrôle des structures.
3) Une optimisation de l'éclairage naturel, et donc une diminution du risque de développement de champignons et de pourriture.
4) Une dissociation nette entre la chaise et la maçonnerie, avec une suppression des vibrations sur la maçonnerie.
Coupes schématiques.
PRISES DE VUES AVANT TRAVAUX - 1997
Niveau 6 - Petite cloche, coulée en 1420.
• Cette cloche aussi surnommée le Grillet (le grillon qui devait pouvoir s’entendre jusque sur la rive droite, à Saint-Gervais) est la plus ancienne cloche signée du canton.
• Diamètre : 88 cm.
• Poids (sans battant) : environ 450 kg
• Fondeur : Ulric
• Anses : avec une cordelette
• Inscriptions : sous le cerveau, en lettres gothiques minuscules. Loycas, marcas, johannes, mathehus. Anno. Domini M.CCCC.XX. hulricus.glockengl. Extrait de l’inventaire de A. Cahorn « Les cloches du canton de Genève » p.139.
Niveau 5 – Moyenne cloche coulée en 1470.
• Diamètre : 88 cm.
• Poids (sans battant) : environ 450 kg
• Fondeur : inconnu
• Anses : à bossages
• Inscriptions : Quelques écritures et nombreuses figures : se référer à l’inventaire de A. Cahorn « Les cloches du canton de Genève ». p.141 et 142.
Niveau 5 – Grosse cloche coulée en 1486.
• Diamètre : 117 cm.
• Poids (sans battant) : environ 600 kg
• Fondeur : inconnu
• Anses : à figures indistinctes
• Inscriptions : Nombreuses écritures et figures : se référer à l’inventaire de A. Cahorn « Les cloches du canton de Genève ». p. 145. D’après l’inventaire, la cloche de l’ancienne abbaye de Bonmont (1453) porte les mêmes inscriptions.

























































