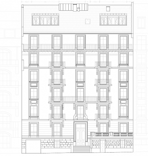
Beaumont 5
Projet: Restauration des façades, adaptation des fenêtres, aménagement des combles, réfection des installations CVSE
Propriétaire et Maître de l'ouvrage: CPEG
Architecte et Direction des travaux: Féroé Architectes SA
Mandataires: Energestion SA, Le Collectif Sàrl, GADZ SA
Année de construction: 1923
2012 - 2019

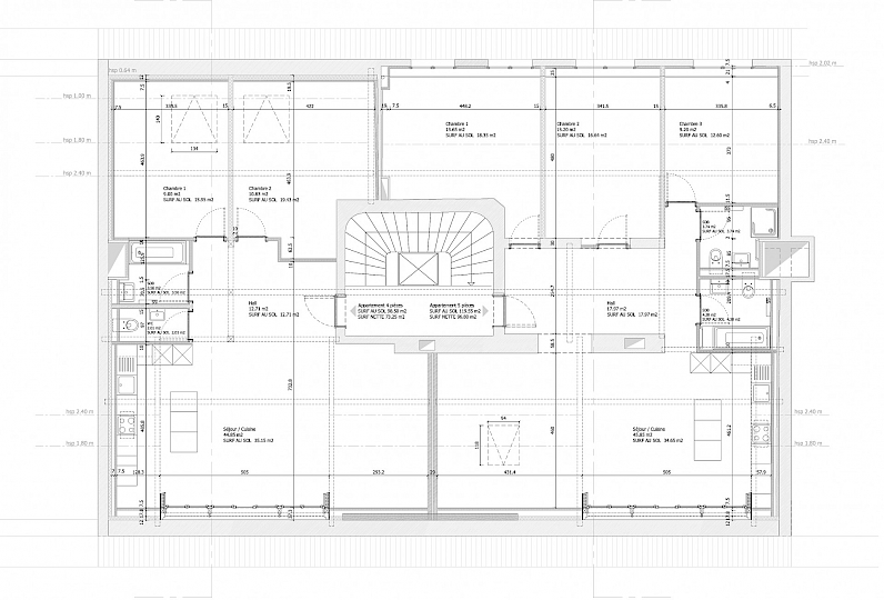
Aménagement des combles
Ce projet consiste en la réalisation de deux logements traversants de 4 et 5 pièces dans les combles au 7ème étage d'un bâtiment construit en 1923 par les architectes Boissonnas et Henssler. Les deux appartements proposent un hall d'entrée généreux qui dessert toutes les pièces. Les chambres sont orientées au nord-est, côté cour. Les espaces de séjour sont eux orientés au sud-ouest, côté Rue de Beaumont.
L'enveloppe thermique pour les locaux aménagés dans les combles a été conçue selon un standard de haute performance énergétique, avec des matériaux de grande qualité et répondant aux principes de mise en oeuvre dans les constructions anciennes (matériaux à haute diffusion de vapeur d'eau). Le dispositif de lucarnes est proposé selon des dimensions maximales autorisées par la nouvelle loi sur les lucarnes. En effet, la réflexion engagée sur cet édifice de 6 étages propose une "expérience pilote" afin de vérifier l'intégration au plan qualitatif et architectural d'une solution qui permettrait d'attenuer les effets négatifs induits par l'actuelle loi sur les lucarnes. Cette forme de lucarne permet d'obtenir une bonne intégration architecturale et incidemment offre la possibilité d'intégrer des panneaux solaires permettant de couvrir 30% des besoins en eau chaude sanitaire de tout l'immeuble conformément à la loi sur l'énergie. Ce concept permet également d'éviter de nombreux percements de la couverture en tuile pour les ouvertures diverses et multiples nécessaires pour éclairer les locaux et impliquant la pose de panneaux solaires en rive de toiture ou en dessous du faîte.
Les toitures des deux lucarnes proposées sont inspirées de celles équipant les "cabinotiers". Elles font respectivement 9m2 et 18m2. Ces dimensions permettent la pose de panneaux solaires thermiques sans qu'ils ne soient visibles depuis la rue, laissant de vastes pans de toiture recouverts de tuiles. Le dimensionnement est inspiré d'une étude approfondie sur les lucarnes disponible ici.
Provenance plans Atelier Féroé
Travaux
Provenance photos O. Chamard
Appartements
Provenance photos E. Fuller


Provenance photos E. Fuller
































